Property Details

£1,500 pcm
1 Bedrooms
1 Bathrooms

Full Details

*Open Afternoon Wednesday 21st January 4pm - 7pm By Appointment Only*

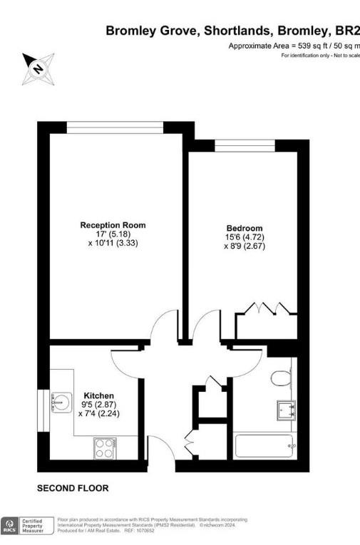
Reception Room 5.18 x 3.33
This bright and spacious reception room measures 17 by 10 feet 11 inches (5.18 by 3.33 metres) and features a large window that fills the space with natural light. The room is finished with a modern grey wood-effect floor and neutral walls, offering a welcoming and adaptable living area.

Bedroom 4.72 x 2.67
This bedroom, measuring 15 feet 6 inches by 8 feet 9 inches (4.72 by 2.67 metres), is a comfortable and well-lit space with a large window overlooking the exterior. It features built-in storage and continues the theme of neutral walls and grey wood-effect flooring, providing a peaceful retreat.

Kitchen 2.87 x 2.24
The kitchen is a sleek, modern space with white cabinetry and contrasting dark worktops. It is equipped with integrated appliances including an oven and a hob, and features a window above the sink that allows plenty of natural light to brighten the area. The grey wood-effect flooring continues here, complementing the overall contemporary feel.

Bathroom
The bathroom is tastefully finished with white vertical tiling and grey wood-effect flooring, creating a clean and modern look. It includes a bathtub with a shower, a wall-mounted sink, a toilet, and a large mirror above the basin, providing a fresh and functional space.

Hallway
The hallway offers practical storage with built-in cupboards and leads into the main living spaces. It has the same grey wood-effect flooring and fresh white walls seen throughout the property, creating a bright and airy entrance area.

Property Summery

Property Summary

*Open Afternoon Wednesday 21st January 4pm - 7pm By Appointment Only*

Welcome to this charming purpose-built flat located in the desirable area of Bromley Grove, Bromley, BR2. This delightful property offers a comfortable living space, perfect for individuals or couples seeking a convenient and modern lifestyle.

Spanning an area of 539 square feet, the flat features a well-proportioned reception room that provides a warm and inviting atmosphere, ideal for relaxation or entertaining guests. The single bedroom is thoughtfully designed to maximise space and comfort, ensuring a peaceful retreat at the end of the day. The bathroom is well-appointed, catering to all your daily needs.

One of the standout features of this property is the availability of parking for one vehicle, a valuable asset in this bustling area. Residents will appreciate the ease of access to local amenities, including shops, restaurants, and parks, all within a short distance.

Floorplans

EPCs

Contact Agents

BROCHURE

I AM REAL ESTATE