Property Details

£18,500 pa

Full Details

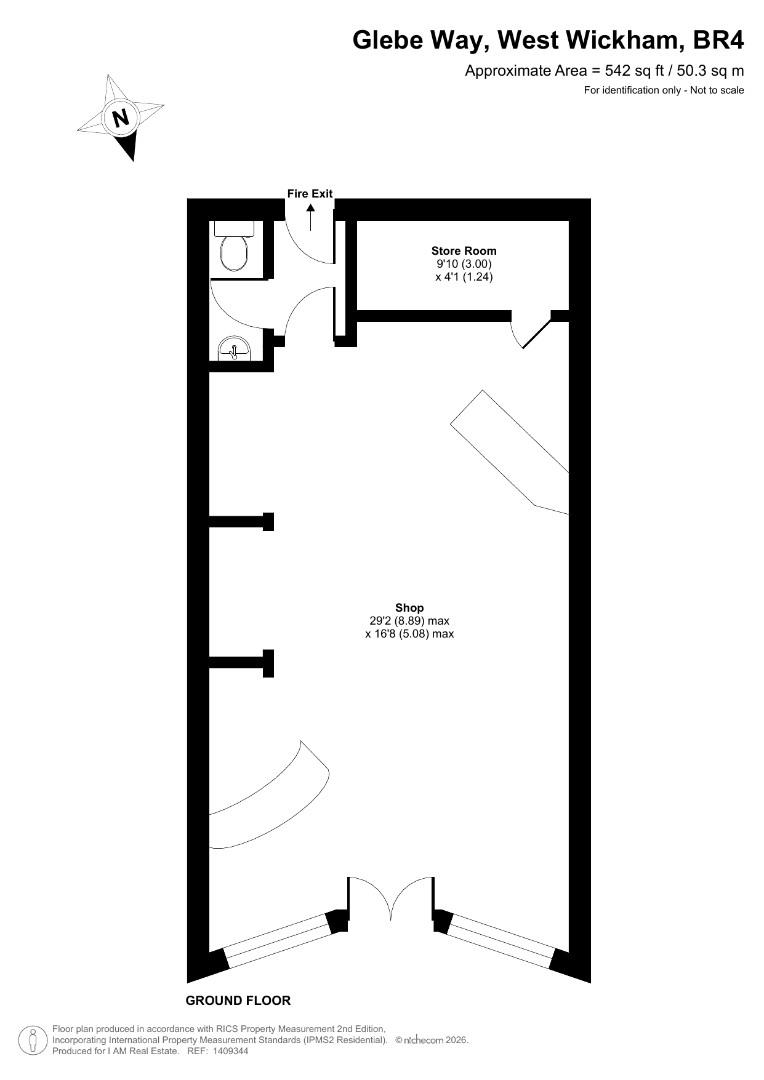
Shop 8.89 x 5.08 m
This spacious shop offers a bright and inviting open-plan area with ample natural light streaming through large front windows and a central double-door entrance. The wooden flooring extends throughout, creating a warm and cohesive environment. A curved reception desk is positioned near the front, complemented by pendant lighting and a feature wall with a textured finish adding character to the space. Towards the rear, a small store room provides practical storage, while an adjacent WC with a sink is finished in contemporary tones, including a dark green accent wall. The shop is well-lit with recessed ceiling lights, and the overall layout is versatile, suitable for various business uses.

Store Room 3.00 x 1.24 m
A compact store room is located at the rear of the shop. It is a narrow, functional space with white walls and wooden flooring that matches the main shop area. It provides useful additional storage for stock or equipment.

WC
The WC is painted in a rich green shade, creating a distinctive yet calm atmosphere. It features a white toilet and a window with a security grille, allowing natural light to enter. The floor is tiled in a light colour, contrasting with the wall finish, while practical fixtures include a toilet roll holder and brush.

Property Summery

Property Summary

Business Rates: The Rateable Value from 1 April 2026 is £15,250. Based on the current multiplier (approx. 49–50p in the £), annual business rates are estimated at around £7,600 before any reliefs. Interested parties should make their own enquiries with London Borough of Bromley to confirm their liability.

Retail, Hospitality & Leisure Relief: Eligible retail, hospitality and leisure occupiers (e.g. shops, cafés, restaurants, wine bars, takeaways, convenience stores and hairdressers) may qualify for RHL Relief, currently 40% (subject to eligibility and council approval). Office or professional service uses would not normally qualify.

The location is ideal, situated in a bustling neighbourhood that benefits from a steady flow of foot traffic, making it perfect for attracting customers. The surrounding area is well-established, with a mix of residential and commercial properties, ensuring a supportive environment for your business to thrive.

With its classic architecture and potential for modernisation, this retail space offers a blank canvas for entrepreneurs looking to create a unique shopping experience. Whether you envision a boutique, café, or service-oriented business, the possibilities are endless in this prime location.

Glebe Way is well-connected, providing easy access to public transport and local amenities, further enhancing its appeal. This property is not just a space; it is an opportunity to become part of a lively community and contribute to its local economy.

Floorplans

Contact Agents

BROCHURE

I AM REAL ESTATE