Property Details

£1,650 pcm
2 Bedrooms
1 Bathrooms

Full Details

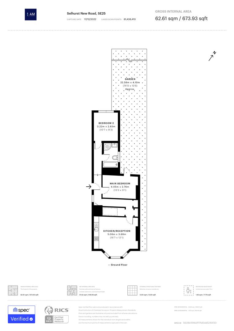
Kitchen/Reception 5.06m x 3.68m
This bright and airy kitchen/reception room features a contemporary design with sleek white cabinetry and integrated appliances. The space is enhanced by a large bay window that allows plenty of natural light to flood in, creating a welcoming environment. Light wood-effect flooring complements the neutral walls, while recessed ceiling lights provide a modern finish. The open layout offers versatility for both cooking and relaxing, with ample room for dining and socialising.

Main Bedroom 4.05m x 2.76m
The main bedroom is a comfortable and tranquil space with soft carpeting and neutral walls, providing a calm atmosphere. A window and a door offer access to the garden, allowing fresh air and natural light to enter. The room is well-proportioned, ideal for rest and relaxation with easy access to the garden for added convenience.

Bedroom 2 3.22m x 2.83m
Bedroom 2 offers a cosy and practical space with plush carpeting and neutral decoration. The room benefits from a large window that fills the room with natural light, enhancing its inviting feel. It is a versatile room suitable for use as a bedroom, office, or guest room, with a peaceful outlook making it an appealing retreat.

Bathroom
The bathroom is stylishly fitted with modern fixtures including a bathtub, a separate shower cubicle, and a contemporary vanity unit. Tiled walls in muted tones create a clean and sophisticated look, while a heated towel rail and frosted window add practical comfort. The space is bright, fresh, and designed for relaxation and ease of use.

Garden 22.56m x 4.10m approx
The garden extends a generous length from the rear of the property, offering a private outdoor space ideal for relaxation or entertaining. It features a paved patio area suitable for outdoor seating and a lawn bordered by fencing for added privacy. The garden enjoys a sunny aspect and has potential for gardening or creating a family-friendly play area.

Property Summery

Property Summary

******Open Afternoon Monday 2nd February 3:30pm - 6:30pm****** By Appointment Only******

Nestled in the vibrant area of Selhurst New Road, London, this charming flat conversion offers a delightful blend of character and modern living. Spanning an impressive 676 square feet, the property features two well-proportioned bedrooms, making it an ideal choice for couples, small families, or those seeking a comfortable space to call home.

The flat boasts a welcoming reception room, perfect for relaxation or entertaining guests. The layout is thoughtfully designed to maximise space and light, creating an inviting atmosphere throughout. The bathroom is conveniently located, ensuring practicality for everyday living.

Dating back to the 1930s and 1950s, this property retains some of its original features while providing the essential comforts of contemporary life. The surrounding area is well-connected, offering easy access to local amenities, parks, and public transport links, making it a convenient base for both work and leisure.

Floorplans

EPCs

Contact Agents

BROCHURE

I AM REAL ESTATE