Property Details

£775,000 Guide Price
4 Bedrooms
2 Bathrooms

Full Details

Kitchen / Dining / Living Area
This spacious kitchen features a modern layout with ample storage provided by numerous shaker-style cabinets in a light beige tone. A generous farmhouse sink sits beneath a window, allowing natural light to flow in while providing a pleasant view. The kitchen includes a large range cooker with a stainless steel extractor hood and a central island that extends to create a breakfast bar with seating for three. The herringbone-patterned flooring adds a touch of elegance and continuity throughout the space, which opens seamlessly into the adjacent dining and living areas, enhancing the sense of openness and flow.

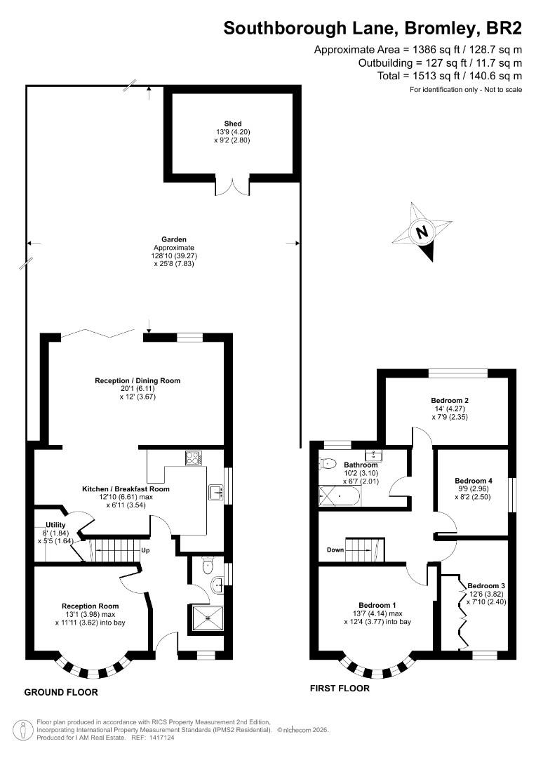
Reception Room 3.96 x 3.66
This bright and spacious reception room features a large bay window that fills the space with natural light. It has neutral walls and carpeted flooring, along with a decorative ceiling rose, creating a welcoming and comfortable atmosphere perfect for relaxing or entertaining.

Reception / Dining Room & Kitchen 6.10 x 3.66
A well-appointed kitchen that flows openly into the dining and reception area. It is fitted with elegant shaker-style cabinets in a soft neutral tone, a farmhouse sink, and integrated appliances including a large range cooker. The kitchen island provides ample workspace and seating, with contemporary bar stools. The open-plan layout enjoys natural light from multiple windows and doors leading to the garden, while the herringbone-style wood flooring adds warmth and sophistication throughout.

Bedroom 1 3.99 x 3.76
This well-presented bedroom is bright and spacious thanks to a generous bay window. It has a neutral decor with a feature painted wall panel, carpeted flooring, and a simple ceiling rose, providing a calm and restful environment with plenty of natural light.

Bedroom 2 4.27 x 2.34
A second bedroom with a large bay window allowing natural light to fill the room. It features wooden flooring and simple, clean décor, offering a bright and airy feel that's versatile for a variety of uses.

Bedroom 3 2.95 x 2.39
This bedroom is compact and practical, with a window overlooking the garden. The neutral decor and carpeted flooring create a light and comfortable space, suitable for various needs such as a child's room or home office.

Bedroom 4 3.66 x 2.34
This bedroom has a window providing natural light and neutral decor with carpet flooring. It is a cosy room, ideal for a guest bedroom or study.

Bathroom
A contemporary bathroom with a clean, modern finish. It includes a bath with a shower attachment, a sleek vanity unit with a basin, a modern toilet, and tiled flooring. The white wall tiles with a decorative border add a fresh and bright look.

Rear Garden 27.43 x 8.28 (approx)
The rear garden is a generous outdoor space featuring a large lawn bordered by mature trees and shrubs, creating a private and tranquil environment. It includes a patio area, perfect for relaxing or entertaining, and ample space for outdoor activities, including a children's swing set.

Kitchen /Reception / Dining Room 12'10 (6.61) max x 6'11 (3.54)
The open-plan kitchen and reception/dining room is a bright and spacious area featuring herringbone-patterned flooring throughout. The kitchen is equipped with modern cabinets, a central island with breakfast bar seating, and stainless steel appliances including a large cooker with an extractor hood above. Adjacent to the kitchen is a built-in wine rack and additional storage space. The reception/dining area enjoys ample natural light from large windows and patio doors that open out onto the garden, creating a seamless flow between indoor and outdoor living.

Garden 39.27 x 7.83
The rear garden extends well beyond the property, featuring a paved patio area ideal for outdoor seating and entertaining. Beyond this is a large, well-maintained lawn bordered by mature trees and fencing, providing a private and peaceful outdoor space. At the far end, a garden shed offers additional storage.

Front Exterior
The front exterior of the property features a spacious paved driveway, providing ample off-street parking. The home has a traditional semi-detached facade with a covered porch entrance and bay windows, lending character and charm to the overall appearance.

Downstairs Shower/WC

Utility Room

Property Summery

Property Summary

Guide Price £750,000 - £800,000

Nestled in the charming area of Southborough Lane, Bromley, this delightful semi-detached house offers a perfect blend of comfort and style. With generous living space, this property is ideal for families seeking a welcoming home.

The house boasts two spacious reception rooms, providing ample space for relaxation and entertaining guests. The well-appointed kitchen complements the living areas, making it a delightful space for culinary pursuits. With four bedrooms, there is plenty of room for family members or guests, ensuring everyone has their own private sanctuary.

The property features two bathrooms, which is particularly convenient for busy households. The thoughtful layout allows for both functionality and privacy, catering to the needs of modern living.

Built between 1930 and 1939, this home retains a sense of character while offering the comforts of contemporary living. The semi-detached design provides a sense of community, while still allowing for personal space.

For those with vehicles, the property includes parking for two vehicles, a valuable asset in this sought-after area. The location is well-connected, making it easy to access local amenities, schools, and transport links.

In summary, this semi-detached house on Southborough Lane is a wonderful opportunity for those looking to settle in Bromley. With its spacious layout, charming character, and convenient parking, it is a property that truly deserves your attention.

Floorplans

EPCs

Contact Agents

BROCHURE

I AM REAL ESTATE