Property Details

£4,250 pcm
5 Bedrooms
4 Bathrooms

Full Details

Reception Room 1
This spacious and inviting reception room offers a bright and open layout with large windows that fill the space with natural light. The polished tile flooring in a neutral tone complements the clean white walls and ceiling, enhancing the sense of space. A built-in wooden storage unit with cabinets is neatly positioned under the staircase, adding practical storage while maintaining a tidy appearance. The room connects seamlessly to adjoining areas, creating a versatile living space perfect for relaxing or entertaining.

Reception Room 2
This elegant reception room features polished dark marble flooring with a subtle pattern and is enhanced by plenty of natural light from large windows and sliding doors that open out onto the rear garden. The crisp white walls and ceiling with detailed coving provide a classic and refined backdrop. The room is spacious and versatile, making it ideal for both formal and informal gatherings, with easy access to the adjoining dining room and conservatory.

Dining Room 5.58 x 3.52
The dining room enjoys a stylish tiled floor with a light, neutral design. It is bright and airy thanks to its position adjacent to the conservatory and reception room, benefiting from natural light flowing through the connected spaces. The room's smooth, white walls and ceiling create a calm, modern atmosphere that is perfect for family meals and entertaining guests.

Conservatory 7.48 x 3.50
The conservatory is a generous space flooded with natural light through its extensive windows and translucent roof panels. The floor is finished with polished tiles in a pale colour with darker square accents, adding visual interest to the bright and airy room. With heating provided by radiators beneath the windows, this room offers a comfortable space to enjoy garden views all year round, extending the living area into the outdoors.

Kitchen 5.43 x 3.48 max
The kitchen presents a traditional feel with rich wooden cabinetry providing ample storage alongside integrated appliances and large work surfaces. The countertops complement the dark, polished flooring that extends from the kitchen into adjacent rooms, creating a cohesive look. A circular glass-topped table with a sculpted base adds a contemporary touch and an informal dining option. The kitchen benefits from a sizeable window that allows natural light to brighten the space and overlooks the rear garden.

Utility Room
This useful utility room features a wooden floor and built-in cabinetry providing plenty of storage space. A window allows daylight to enter, and the room connects conveniently to the kitchen through an arched doorway, making it an ideal space for practical household tasks.

Hall 3.28 x 1.83
The hall is finished with a sleek marble floor in dark tones, complemented by light walls and a bright atmosphere from the front door side window. It offers access to the reception rooms and stairs, with a handy cloakroom featuring modern tiling and fittings to one side. This welcoming entrance gives a good first impression with its clean, polished look.

Bedroom 1 8.03 x 4.35 max
This large principal bedroom is a light and spacious room with wooden flooring and extensive built-in wardrobes along two walls, offering excellent storage options. A window and a glazed door open to the outside allowing natural light to fill the room. The ensuite bathroom, visible through an internal door, completes this comfortable and private bedroom suite.

Ensuite
The ensuite bathroom connected to the principal bedroom features a corner shower enclosure with multiple jets, a curved bath, and a vanity unit with a basin and WC. The walls and floor are tiled in neutral tones with decorative trim, creating an elegant and well-equipped space for relaxation.

Bedroom 3
This bedroom is bright and airy with wooden flooring and built-in wardrobes with mirrored sliding doors. Two windows provide good natural light, creating a fresh and comfortable atmosphere.

Bedroom 4
This bedroom features wooden floors and built-in wardrobes on either side of the window, which is dressed with curtains. The room is well-lit and offers a cosy and inviting space.

Bedroom 2 5.77 x 3.58
This bedroom provides built-in wardrobes and wooden flooring, with a large window dressed with curtains allowing plenty of natural light. The room's neutral colour palette makes it adaptable for various uses.

Bedroom 5 3.55 x 2.59
A well-lit bedroom with wooden flooring and built-in wardrobes, featuring a window with curtains. The space is clean and neutral, ready to be personalised to suit individual needs.

Bedroom 6 3.21 x 2.86 max
This bedroom offers fitted wardrobes with mirrored doors and wooden flooring. Two windows bring in natural light, enhancing the room’s airy and bright character.

Landing
The landing area is bright with wooden flooring and built-in cabinets, providing useful storage. It connects the bedrooms and bathrooms with open access throughout the upper floor.

Bathroom
This bathroom features a corner shower with clear glass doors, a toilet, and a long vanity unit with a basin. The walls and floor are finished in pale blue tiling, creating a fresh, clean look.

Bathroom 2
This bathroom includes a corner shower enclosure with glass doors, a toilet, and a heated towel rail. The walls are tiled halfway with blue patterned tiles, and the floor is finished with matching tiles, offering a bright and practical space.

Rear Garden 17.00 x 16.50
The rear garden extends generously with a well-maintained lawn bordered by mature trees and shrubs, providing privacy and a peaceful green setting. A paved terrace is accessible from the conservatory, ideal for outdoor seating and enjoying the garden views.

Property Summery

Property Summary

Nestled in the desirable area of The Spinneys, Bromley, this impressive detached house offers a perfect blend of space and comfort. Spanning an expansive 3,938 square feet, the property boasts five generously sized bedrooms, making it an ideal family home. Each bedroom is designed to provide a peaceful retreat, ensuring ample room for relaxation and privacy.

The house features three elegant reception rooms, perfect for entertaining guests or enjoying quiet family evenings. These versatile spaces can be tailored to suit your lifestyle, whether you envision a formal dining area, a cosy lounge, or a vibrant playroom for children.

With four well-appointed bathrooms, this home ensures convenience for all family members and guests, alleviating the morning rush and providing a touch of luxury. Built in 1975, the property combines classic charm with modern living, offering a solid foundation for your future.

The Spinneys is a sought-after location, known for its tranquil surroundings and community spirit, making it an excellent choice for families. This remarkable house presents a unique opportunity to create lasting memories in a spacious and welcoming environment. Don't miss the chance to make this splendid property your new home.

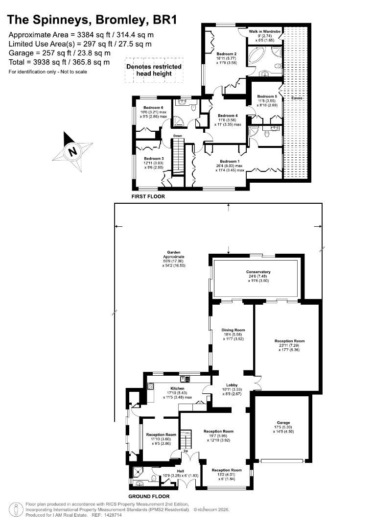
Floorplans

Contact Agents

BROCHURE

I AM REAL ESTATE